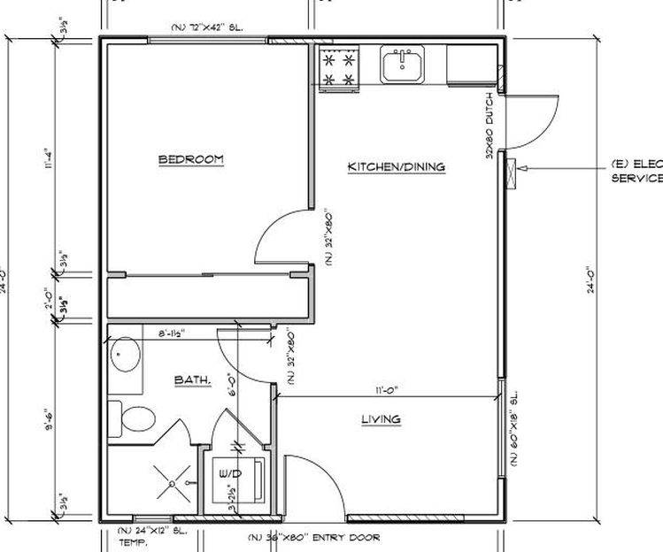
Garage Conversion | Woodland Hills, CA

Garage Conversion

Woodland Hills, CA

Location Woodland Hills, CA
Year Summer 2019
Budget $50,000 - $75,000
Turnaround 2 Months

Karma Remodel & Development

Building Your Dreams With Karma

REVIEWS

houzz

"From our initial contact with Shai and Karma Remodel through the completion of our project, I could not be more satisfied with the work that was done renovating the entire main living floor of my family's first home (including a complete kitchen remodel, new powd..."

Melanie F.

Santa Monica, CA


houzz

"I had MAJOR renovations done on my house last year. They included a complete kitchen remodel, turning my old garage into a permitted guest house (which I now rent out), complete redo of my backyard and a renovation of my pool, which was originally built in 1965...."

Joanne W.

San Francisco, CA


houzz

"If you want honest reliable construction company that listen to your need and deliver in time I recommend "Karma construction and remodeling" My neighbor Alex recommended them to me. From the moment I call them they were very professional, I needed room add..."

Eric B.

Tarzana, CA


RELATED PROJECTS


CONTACT US


21610 Ventura Blvd Woodland Hills, CA 91364

CA License
CSLB#875130